



Die eigene Lehrerinnen- und Lehrerbildung hat im Thurgau eine grosse und lange Tradition: Als einer der ersten Kantone gründete er bereits 1833 in der Kreuzlinger Seeburg ein Lehrerseminar, das 1850 in die ehemalige Klosteranlage umgezogen ist. Dort ist noch heute die Pädagogische Maturitätsschule untergebracht. 1972 wurde das Seminar um die sogenannten Guyer-Bauten, geplant vom renommierten Architektenehepaar Rudolf und Esther Guyer, erweitert. Sie umfassen den Aula- und Musik-, den Naturwissenschafts- sowie den Turnhallentrakt.
Im Zuge der schweizweiten Entwicklung, alle Lehrpersonen künftig auf Hochschulstufe auszubilden, entschloss sich der Kanton Thurgau, die eigene Lehrerinnen- und Lehrerbildung beizubehalten und als erste Einrichtung auf der Tertiärstufe eine Pädagogische Hochschule (PH) zu gründen. Sie nahm 2003 in provisorischen Räumlichkeiten in Kreuzlingen ihren Betrieb auf. 2008, zum 175-Jahr-Jubiläum der Thurgauer Lehrerinnen- und Lehrerbildung, konnte die PHTG zwei Neubauten auf dem Areal zwischen der historischen Klosteranlage und der Kantonsschule Kreuzlingen beziehen. Die PHTG, die Pädagogische Maturitätsschule und die Kantonsschule Kreuzlingen bilden seither den Campus Bildung Kreuzlingen, der durch die Sekundarschule Pestalozzi und die Primarschule Schreiber der Schulgemeinde Kreuzlingen sowie das Sport- und Kulturzentrum Dreispitz der Stadt Kreuzlingen in unmittelbarer Nachbarschaft ergänzt wird. Mit dem Erweiterungsbau, über den jetzt abgestimmt wird, kann dieser einmalige Bildungscampus in einer idealen und platzsparenden Weise vollendet und die bereits enge und synergetische Zusammenarbeit zwischen den einzelnen Institutionen noch verstärkt werden.
Der Thurgau darf stolz sein auf seine eigene Lehrerinnen- und Lehrerbildung und ihre 184jährige Tradition. Das soll auch in Zukunft so bleiben.
Seit 2003 führt der Kanton Thurgau in Kreuzlingen die Pädagogische Hochschule Thurgau (PHTG). Sie startete damals in provisorischen, gemieteten Räumlichkeiten mit zwei Studiengängen für die Vorschulstufe und die Primarstufe. Deshalb wurde eine erste Erweiterung für die Lehrerbildung (Gebäude P und M) unterhalb der Pädagogischen Maturitätsschule für rund 350 Studierende konzipiert. Das Thurgauer Volk hat sich 2006 mit einem Ja-Stimmen-Anteil von fast 64 Prozent dafür ausgesprochen. Seither sind drei weitere Studiengänge dazu gekommen: die Ausbildungen für die Sekundarstufe I (Sekundarschule) und für die Sekundarstufe II (Gymnasium) sowie für die Frühe Kindheit. Die politisch gewünschte Ausweitung des Leistungsauftrages hat dazu geführt, dass an der PHTG jetzt fast 800 Studierende ausgebildet werden, also mehr als doppelt so viele wie ursprünglich vorgesehen.
Mit der um den Erweiterungsbau ergänzten Infrastruktur können für den Kanton Thurgau genügend Lehrpersonen für alle Stufen und für alle Fächer ausgebildet werden. Auch wenn, wie gewünscht, an der PHTG noch etwas mehr Lehrpersonen für die Sekundarschule ausgebildet würden, hätte dies keinen weiteren Platzbedarf zur Folge.
Aufgrund von politischen Vorstössen erweitert wurde der Leistungsauftrag der PHTG auch um eine Verstärkung im Bereich der „praktischen Fächer“ wie Textiles und Technisches Gestalten sowie Hauswirtschaft. Der sich daraus ergebende zusätzliche Raumbedarf wurde bisher zum Teil mit nicht optimalen und provisorischen (Miet-)Lösungen überbrückt.
Mit dem jetzt zur Abstimmung gelangenden Erweiterungsbau wird die Infrastruktur im Zentrum des Campus’ massgeschneidert ergänzt, womit sich noch mehr Synergien ergeben und bis auf eine Ausnahme alle Mietverhältnisse aufgelöst werden können. Das letzte verbleibende Mietverhältnis im "ceha!"-Gebäude könnte aufgelöst werden, falls die Studierendenzahlen dereinst fallen sollten. Eine weitere Erhöhung der Studierendenzahl ist weder für das Thurgauer Bildungswesen notwendig, noch wird es von der PHTG angestrebt. Mit dem Erweiterungsbau ist das zur Verfügung stehende Areal optimal genutzt.
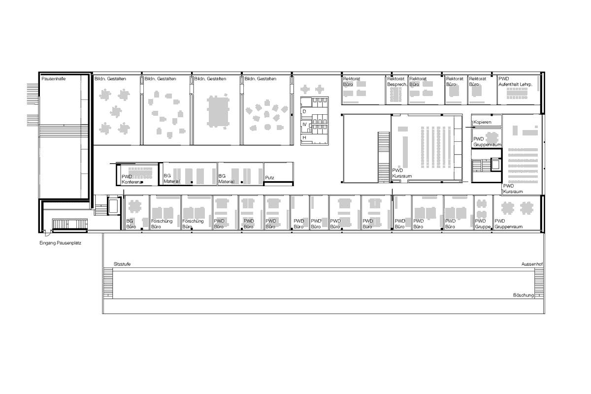
Mit dem Erweiterungsbau für die Pädagogische Hochschule Thurgau (PHTG), über den am 26. November abgestimmt wird, wird die bestehende Infrastruktur optimal ergänzt und der einzigartige Bildungscampus auf den erweiterten Auftrag der PHTG ausgerichtet. Der Bau ist entlang der Schulstrasse zwischen den bestehenden beiden Bauten der PHTG und der Pädagogischen Maturitätsschule (PMS) in der Klosteranlage geplant. Dieser Standort unterstützt nicht nur schlanke betriebliche Abläufe sowohl an der PHTG als auch an der PMS, sondern ist auch Ausdruck einer kompakten Bauweise (die gesamte Grünfläche unterhalb der Schulstrasse bleibt unbebaut). Als ergänzender Baustein des Campus’ hat der Erweiterungsbau nicht nur verschiedenen Nutzungsansprüchen zu genügen, sondern muss sich auch in die Umgebung mit teils historischen und denkmalgeschützten, in jedem Fall aber architektonisch hochwertigen Gebäuden einfügen. Das gelingt mit dem zur Abstimmung gelangenden Projekt in idealer Weise. Das zweigeschossige Gebäude nutzt den Terrainverlauf geschickt, erscheint gegenüber dem höher gelegenen Areal der benachbarten Primarschule Schreiber als eingeschossiges Gebäude und gewährleistet den freien Blick auf die Klosteranlage und die Basilika. Auf der anderen Seite bildet der Erweiterungsbau (mit über die gesamte Länge gedecktem Vorbereich) zusammen mit dem auf der gegenüberliegenden Strassenseite gelegenen Gebäude M der PHTG das eigentliche Zentrum des Bildungscampus’, das so erst richtig zur Geltung kommt. Die Konstruktion als Skelettbau ermöglicht eine grosse Flexibilität bei der Raumeinteilung und für allfällige künftige Nutzungsänderungen. Shedoblichter, die zweigeschossige Eingangshalle und der Hof auf der Südseite sorgen überall für eine gute natürliche Belichtung. Der Erweiterungsbau mit einer Nutzfläche von 4'180 m² wurde vom Architekturbüro Beat Consoni geplant und ging aus einem 2015 ausgeschriebenen Wettbewerb als Siegerprojekt hervor.
Im Erweiterungsbau wird zunächst Platz geschaffen für das Bildnerische Gestalten (unter anderen diese Räumlichkeiten werden auch von der Pädagogischen Maturitätsschule (PMS) mitbenutzt). Das ermöglicht, dass das Textile Gestalten (jetzt in einem provisorischen Pavillon auf dem Sportplatz untergebracht) ins bestehende, benachbarte Gebäude M zurückkehren kann, wo auch das Technische Gestalten (mit Holz- und Metallwerkstätten) untergebracht ist. Ferner wird es im Erweiterungsbau eine Ausbildungsküche (mit Seminarraum und Nebenräumen) geben, damit künftig Sekundarlehrpersonen auch im Fach Hauswirtschaft (nach neuem Lehrplan Wirtschaft, Arbeit, Haushalt) ausgebildet werden können, was bisher (wegen der fehlenden Infrastruktur) an der PHTG nicht möglich ist. Solche Spezialräume (z.B. Ausbildungsküche) können nicht zugemietet werden, weil es sie anderweitig gar nicht gibt.
Im Erweiterungsbau wird aber auch Platz geschaffen für den für das Thurgauer Bildungswesen so wichtigen Bereich Weiterbildung und Dienstleistungen (bisher zur Miete im „HafenCenter“). Er wird dort von der unmittelbaren Nachbarschaft zum Bereich Medienbildung inkl. Medienwerkstatt (jetzt im Gebäude M) und Informatik profitieren. Und dass sich die Bibliothek des Medien- und Didaktikzentrums (MDZ) der PHTG (wie jetzt im bestehenden Gebäude M) dann gleich auf der gegenüberliegenden Strassenseite befindet, ist ein weiterer Vorteil.
Und schliesslich werden im Erweiterungsbau auch die Forschungsabteilung (bisher zur Miete im "HafenCenter" bzw. im "Bären") und das Rektorat (bisher im PH-Gebäude P) einziehen. Damit wird im Gebäude P zusätzlicher Raum für Dozierende und Studierende für Besprechungen und Gruppenarbeiten zur Verfügung stehen, was in Anbracht des Wachstums der letzten Jahre dringend notwendig ist.
Der am 26. November zur Abstimmung gelangende Kredit für den Erweiterungsbau der Pädagogischen Hochschule Thurgau beläuft sich auf 26,88 Mio. Franken. Darin enthalten sind auch die Kosten für den Landabtausch mit der Schulgemeinde Kreuzlingen von 2,29 Mio. Franken (was für die knapp 3500 m² einen Quadratmeterpreis von 671 Fr. ergibt), der den Bau an diesem idealen Standort erst möglich machte. Da er in eine bestehende Struktur einfügt werden muss, sind auch die Vorbereitungsarbeiten (Kosten von 1,88 Mio. Franken) relativ aufwendig. Auch der hier mit Rücksicht auf die denkmalgeschützte Klosteranlage nur zweigeschossige Bau hat im Vergleich zu höheren Bauten zu Mehrkosten von rund 10% zur Folge. Der schwierige Baugrund führt zudem zu Kosten für die Baugrube von 1,34 Mio. Franken. Die Bodenbeschaffenheit ist auch der Grund dafür, dass aus Kostengründen (errechneter Aufwand pro Platz 70‘000 Franken) auf eine Tiefgarage verzichtet wird. Dafür wird im Zuge des Bauprojektes der bestehende Parkplatz bei den Guyer-Bauten erweitert.
Bei reinen Gebäudekosten von 20,22 Mio. Franken ergibt sich ein Kubikmeterpreis nach SIA-Norm 416 von 857 Franken, was für solche (Schul-)Bauten absolut im Rahmen ist (ein Beispiel zum Vergleich: Bei einem kürzlich eingeweihten Schulhausneubau in St. Margarethen TG waren die Kosten bei 860 Franken pro m³). Unter den besten Wettbewerbsprojekten war das zur Abstimmung gelangende Projekt nur geringfügig teurer (0,62%) als das günstigste.
Im Baukredit eingerechnet ist, wie bei solchen Vorhaben üblich, eine Reserve von 870‘000 Franken, so dass ein Überschreiten des Kredites ausgeschlossen werden kann.
Der Ergänzungsbau ist nach dem gesetzlich vorgeschriebenen Standard Minergie-P konzipiert. Auf Antrag der vorberatenden Kommission hat der Grosse Rat beschlossen, im Rahmen der Ausführungsplanung eine Zertifizierung nach dem strengeren Standard Minergie-A anzustreben. Das ermöglicht voraussichtlich auch eine Reduktion der Baukosten zwischen 700‘000 und 800‘000 Franken.
Auch bei einer Ausführung nach Minergie-A-Standard wird der Erweiterungsbau über den Jahreszyklus betrachtet mehr Energie produzieren, als effektiv verbraucht wird. Dies auch dank der Photovoltaik-Anlage auf dem Dach. Der Erweiterungsbau wird an die mit Holzschnitzeln betriebene zentrale Fernwärmeversorgung angeschlossen, die die Heizenergie auch für alle anderen Campus-Gebäude liefert.
Der Erweiterungsbau ist nicht für mehr Studierende geplant. Er wird aus Gründen des Platzmangels erstellt. Es entsteht also gegenüber heute auch kein Mehrbedarf an Parkplätzen. Trotzdem werden im Zusammenhang mit dem Erweiterungsbau auf dem Campus 39 zusätzliche Parkplätze geschaffen (Erweiterung des bestehenden Parkplatzes bei den Guyer-Bauten).
Gemäss eines eigens erarbeiteten Parkierungskonzeptes für den Campus (PHTG und PMS) – einschliesslich des Erweiterungsbaus – wurde in Anwendung der geltenden Schweizer Norm SN 640281, die auch für das Baubewilligungsverfahren massgebend ist, ein Bedarf von 150 Parkplätzen errechnet.
Künftig werden insgesamt sogar 172 Parkplätze zur Verfügung stehen: 80 Parkplätze gemäss Vereinbarung mit der Stadt Kreuzlingen auf dem Bärenplatz (bzw. in einer der geplanten Tiefgaragen*) und 92 (bisher nur 53) auf dem erweiterten Parkplatz bei den Guyer-Bauten. 19 Parkplätze werden der Schulgemeinde Kreuzlingen abgetreten, da die gleiche Anzahl im Zusammenhang dem Erweiterungsbau (zugunsten eines Spielfeldes) aufgehoben werden muss. Trotzdem stehen für die PHTG und die PMS auch dann noch 153 Parkplätze zur Verfügung, drei mehr als gemäss Norm erforderlich und 20 mehr als heute.
Die Parkplätze kosten die PHTG übrigens keinen Franken. Die Kosten dafür müssen von den Nutzerinnen und Nutzern vollumfänglich übernommen werden – auch in Zukunft.
Im Zusammenhang mit dem vom Souverän bereits bewilligten Neubau des Kreuzlinger Stadthauses werden die oberirdischen Parkplätze auf dem Bärenplatz in eine Tiefgarage verlegt. Dort werden 162 frei benutzbare Parkplätze zur Verfügung stehen, am Abend und am Wochenende sogar 251 (heute auf dem Bärenplatz nur 97 bzw. 177). Zudem plant die Stadt Kreuzlingen beim Hafenbahnhof ein neues Parkhaus mit (in einer ersten Ausbauetappe) 250 bis 300 Parkplätzen. 61 (der insgesamt 80) Parkplätze, die der PHTG von der Stadt Kreuzlingen vertraglich zugesichert sind, sollen dorthin verlegt werden. Der Kreuzlinger Gemeinderat hat an seiner Sitzung vom 5. Oktober 2017 den Planungskredit für das Parkhaus beim Bahnhof Hafen ohne Gegenstimme genehmigt. Die Stadt Kreuzlingen strebt an, dieses Parkhaus noch vor dem Bau der Tiefgarage unter dem Bärenplatz in Betrieb nehmen zu können.
Wie alle anderen kantonalen Schulbauten wird der Erweiterungsbau der PHTG durch den Kanton Thurgau finanziert, der auch Eigentümer der Liegenschaften ist. Deshalb unterliegen die entsprechenden Baukredite auch der Volksabstimmung, was – im Gegensatz etwa zu den Spitalbauten – eine demokratische Auseinandersetzung mit den Projekten ermöglicht.
Die Baukosten für den Erweiterungsbau sind seit einigen Jahren im Finanzplan des Kantons enthalten und die entsprechenden Jahrestranchen sind im Hochbauprogramm berücksichtigt.
Der Kanton wird der PHTG für die Nutzfläche von 4180 m² im Erweiterungsbau einen Mietzins von 940‘000 Franken pro Jahr verrechnen (225 Franken pro m²). Die Berechnung beruht auf einem Kapitalisierungssatz von 3,5 %. Enthalten ist darin auch 1 % für den jährlichen Unterhalt.
Die Mietkosten für den Erweiterungsbau werden im Rahmen des Globalbudgets (Staatsbeitrag) des Kantons an die PHTG berücksichtigt und sind im Finanzplan entsprechend eingeplant.
Im Gegenzug entfallen mit dem Erweiterungsbau Fremdmietkosten von insgesamt 261‘000 Franken pro Jahr für die bisher von Privaten gemieteten Räumlichkeiten im „HafenCenter“ und im „Bären“, so dass Mehrkosten für die Miete von maximal 679‘000 Franken pro Jahr entstehen. Zudem bleibt das Geld künftig sozusagen „in der Familie“ – und das Gebäude gehört dem Kanton.
Der Grosse Rat des Kantons Thurgau hat sich in verschiedenen Phasen intensiv mit dem Erweiterungsbau der PHTG befasst. Die Geschäftsprüfungs- und Finanzkommission (GFK) des Kantonsparlamentes hat sich bereits im Frühling 2014 mit dem Raumprogramm auseinandergesetzt, auf dessen Grundlage 2015 der Projektwettbewerb durchgeführt wurde. Die 16köpfige vorberatende Kommission des Grossen Rates unter der Leitung von Kantonsrat und Schulpräsident Andreas Wirth (SVP, Frauenfeld) hat das Projekt gründlich geprüft und sich schliesslich mit elf Ja zu einem Nein und drei Enthaltungen klar dafür ausgesprochen. Die Kommission beantragte dem Grossen Rat zudem, auf den Minergie-P-Standard zu verzichten und stattdessen in der weiteren Planung den Minergie-A-Standard anzuwenden. Das Plenum des Grossen Rates folgte diesen Anträgen seiner vorberatenden Kommission und verabschiedete das Kreditbegehren von 26,88 Mio. Franken nach gewalteter Diskussion an seiner Sitzung vom 28. Juni 2017 mit 95 zu 12 Stimmen zu Handen der Volksabstimmung.
Sofern der Thurgauer Souverän dem Kreditbegehren für den Erweiterungsbau der PHTG am 26. November zustimmt, wird unverzüglich die Detailplanung an die Hand genommen. Im Herbst 2018 würde mit den Bauarbeiten begonnen.
Voraussichtlich ab Beginn des Schul- bzw. Studienjahres im August 2020 stünde der Erweiterungsbau zur Nutzung zur Verfügung.
Die Bedeutung der eigenen Lehrerinnen- und Lehrerbildung für die Thurgauer Volksschule und das Thurgauer Bildungswesen insgesamt kann nicht genug hoch eingeschätzt werden. Erste und oberste Zielsetzung ist es, jederzeit genügend und gut qualifizierte, mit den hiesigen Verhältnissen vertraute Lehrpersonen für alle Stufen des Thurgauer Bildungswesens auszubilden. Das ist dank der eigenen Lehrerinnen- und Lehrerbildung bisher recht gut gelungen – auch in Zeiten des schweizweit teils akuten Lehrermangels mit gravierenden Folgen für die Schulqualität. Dank den eigenen Ausbildungsmöglichkeiten vor Ort bleiben junge Thurgauerinnen und Thurgauer, die den Lehrerberuf ergreifen möchten, eher im Kanton, für das Studium, für die Praktika und für die anschliessende Berufstätigkeit. Absolvieren sie ihre Ausbildung an einer ausserkantonalen Hochschule, ist die Gefahr gross, dass sie nach dem Abschluss nicht in den Thurgau zurückkehren – wie dies in vielen anderen Bereichen (z.B. Medizin, Ingenieurwesen usw.) leider der Fall ist. Mit der Folge, dass der Kanton Thurgau zwar die gesamten Ausbildungskosten (auch für das auswärtige Studium) zu tragen hat, von diesen Investitionen schliesslich aber nicht profitieren kann. Nur mit einer eigenen Ausbildungsstätte kann dieser sogenannte „Brain Drain“ verhindert werden.
Eine attraktive Hochschule wie die PHTG macht es dagegen möglich, dass sich auch Studierende aus anderen Kantonen und dem nahen Ausland dazu entscheiden, ihre Ausbildung im Thurgau zu absolvieren und anschliessend gegebenenfalls auch hier ihren Beruf auszuüben (was dann als sogenannter „Brain Gain“ bezeichnet wird). Und nicht nur das: Für jede Studierende / jeden Studierenden aus einem andern Kanton muss der jeweilige Herkunftskanton gemäss der interkantonalen Fachhochschul-Vereinbarung (FHV) Beiträge auf der Basis von derzeit 25‘500 Franken pro Kopf und Jahr bezahlen. Im Studienjahr 2016/17 (Stichtag: 1. November 2016) waren es 167 ausserkantonale Studierende, was der PHTG 2016 Einnahmen von insgesamt gut 2,42 Mio. Franken einbrachte.
In Anbetracht dessen, dass in den nächsten 15 Jahren zahlenmässig starke Jahrgänge im Schuldienst pensioniert werden und die Schülerzahlen wieder steigen, wird der Bedarf an Lehrpersonen hoch bleiben.
Neben der auf die Thurgauer Verhältnisse abgestimmten Ausbildung von gut qualifizierten Lehrpersonen für alle Stufen und – nach dem Bezug des Erweiterungsbaus – auch für alle Fächer der Volksschule (inkl. Hauswirtschaft) ist die PHTG auch das Kompetenzzentrum für die so wichtige Weiterbildung der Lehrerinnen und Lehrer. Dank des umfassenden Ausbildungsangebotes stehen hier die entsprechenden Dozentinnen und Dozenten auch für die Weiterbildung vor Ort zur Verfügung, die dadurch ihrerseits wieder Rückmeldungen aus der Praxis erhalten. Ebenso ist die PHTG auch ein Dienstleistungszentrum für das Thurgauer Bildungswesen, das Lehrpersonen, Schulen und Schulbehörden in den verschiedensten Belangen beratend und unterstützend zur Verfügung steht. Das Medien- und Didaktikzentrum (MDZ) dient allen Anspruchsgruppen im Bereich Medien und Bildung und verfügt über die zweitgrösste Bibliothek des Kantons. Und schliesslich erforscht und beantwortet die Forschungsabteilung der PHTG aktuelle Fragen, die in Schule und Bildung von Bedeutung sind.
Alle diese Leistungen der PHTG sind für das Thurgauer Bildungswesen von entscheidender Bedeutung und entfalten einen unmittelbaren Nutzen.
Vor der Abstimmung über die Ergänzungsbauten für die Thurgauer Lehrerinnen- und Lehrerbildung 2006 wurden Zweifel geäussert, ob es die Pädagogische Hochschule in zehn Jahren überhaupt noch geben werde. Und ob es sie noch gibt!
Seit ihrem Bestehen hat sich die PHTG in jeder Hinsicht sehr erfreulich entwickelt. Die einzige Hochschule des Kantons wurde – wie dies der Thurgauer Art entspricht – Schritt um Schritt auf- und ausgebaut. Beim Start 2003 wurden die Studiengänge für die Vorschul- und die Primarstufe angeboten, für die im Thurgau bereits zuvor (am Lehrerseminar und Kindergärtnerinnenseminar) ausgebildet wurde. Dank der räumlichen Nähe und der von Anfang an engen Zusammenarbeit mit der Universität Konstanz war es möglich, ab dem Studienjahr 2007/08 auch Lehrpersonen für die Sekundarstufe II (Gymnasium) und ab dem Studienjahr 2009/10 auch Lehrpersonen für die Sekundarstufe I (Sekundarschule) auszubilden. Ab dem Studienjahr 2011/12 ist – ebenfalls in Kooperation mit der Universität Konstanz – der Masterstudiengang Frühe Kindheit dazugekommen. Damit bildet die PHTG für alle möglichen Schulstufen aus und hat damit in der Ostschweiz das umfassendste Studiengebot. So ist der Kanton Thurgau in der Lage, seine Lehrpersonen für die gesamte Volksschule selbst auszubilden. Und mit dem Erweiterungsbau wird es möglich, dass auch für alle Fächer (inkl. Hauswirtschaft, nach dem neuen Lehrplan Wirtschaft, Arbeit, Haushalt) unterrichtet werden kann.
Durch die Ausweitung des Ausbildungsangebotes ist naturgemäss auch die Zahl der Studierenden beträchtlich gestiegen. War man anfänglich noch von 350 Studentinnen und Studenten ausgegangen, waren es 2016 insgesamt fast 800. Die PHTG ist heute von den insgesamt 16 Pädagogischen Hochschulen der Schweiz die siebtgrösste, oder mit anderen Worten: die grösste unter den kleineren. Auch im Bereich der Berufseinführung, der Weiterbildung und der Forschung geniesst sie schweizweit einen hervorragenden Ruf.
Mit dem Erweiterungsbau kann die Erfolgsgeschichte der Thurgauer Lehrerinnen- und Lehrerbildung und der Pädagogischen Hochschule Thurgau fortgeschrieben werden.
In der zweiten Hälfte der 1990er Jahre wurde auf schweizerischer Ebene entschieden, dass Lehrerinnen und Lehrer künftig auf Hochschulstufe ausgebildet werden sollen. Bis dahin besuchten angehende Primarlehrerinnen und -lehrer in den meisten Kantonen der Schweiz ein Seminar auf Mittelschulstufe, im Thurgau das traditionsreiche Lehrerseminar in Kreuzlingen. Dies hatte den Vorteil, dass angehende Lehrerinnen und Lehrer bereits früh, im Anschluss an die Sekundarschule, auf den Beruf vorbereitet und an ihn herangeführt wurden, was namentlich in den musischen und praktischen Fächern von besonderer Bedeutung ist. Um die Vorteile dieser Ausbildung zu erhalten, hat sich der Kanton Thurgau als einziger Kanton der Schweiz entschieden, einen frühen Einstieg in die Lehrerinnen- und Lehrerbildung in Form der Pädagogischen Maturitätsschule (PMS) weiterzuführen. Hier erhalten die Schülerinnen und Schüler nicht nur eine gymnasiale Bildung, sondern auch eine erweiterte musische und vor allem auch eine pädagogische Ausbildung (inkl. Praktika in Schulklassen). Diese spezifische Vorbildung, die gegenüber einem anderen Gymnasium auch ein Jahr länger dauert, wird beim Übertritt in die PHTG mit einem Jahr angerechnet, sodass für den Lehrerberuf geeignete Absolventinnen und Absolventen der PMS dort gleich ins zweite Studienjahr der Ausbildungsgänge für den Kindergarten und die Primarstufe eintreten können. Die Übertrittsquote von der PMS zur PHTG beträgt rund 70 Prozent. Die Erfahrungen bestätigen, dass dieses Thurgauer Modell der Lehrerinnen- und Lehrerbildung sich bewährt und eine besondere Qualität hat, um die uns andere Kantone beneiden.
Fast zufällig wurden auf dem Areal zwischen dem ehemaligen Augustinerkloster und dem Hafenbahnhof in Kreuzligen im Laufe der Zeit verschiedene Bildungsinstitutionen angesiedelt: das Lehrerseminar (heute Pädagogische Maturitätsschule PMS) in der historischen Klosteranlage (in den 1970er Jahren um die sogenannten Guyer-Bauten mit Aula-und Musik-, Naturwissenschafts- sowie Turnhallentrakt erweitert); das Primarschulhaus Schreiber und das Sekundarschulhaus Pestalozzi der Schulgemeinde Kreuzlingen; später (1969) die Kantonsschule Kreuzlingen (KSK). Lange Zeit funktionierten diese Institutionen mehr neben- als miteinander. Erst mit der Planung der beiden Ergänzungsbauten für die Pädagogische Hochschule Thurgau (PTHG) inmitten dieses Areals zwischen PMS und KSK wurde das (Synergie-)Potential dieser Ballung von Bildungseinrichtungen erkannt, die inzwischen noch durch das Sport- und Kulturzentrum Dreispitz (2006 eingeweiht) ergänzt worden war. Die beiden Neubauten für die PHTG (2008 eingeweiht) waren wie zwei Mosaiksteine, die bisher gefehlt hatten, um das Bild als Ganzes zu erkennen: ein Campus mit allen Schulstufen, von der Primarschule bis zur Hochschule. Der Erweiterungsbau, über den am 26. November abgestimmt wird, ist der letzte, massgeschneiderte Baustein inmitten dieses einmaligen Bildungscampus’, der damit ein eigentliches Zentrum erhält und noch synergetischer genutzt werden kann.
Die kantonalen Schulen (PHTG, PMS und KSK) bilden den „Campus Bildung Kreuzlingen“, der die gesamte Infrastruktur gemeinsam und effizient nutzt: mit einer gemeinsamen Raumverwaltung, mit einer Bibliothek und einer Mensa, mit gemeinsamen Informatikdienstleistungen und mit einem gemeinsamem Hausdienst. Darüber hinaus sind die Begegnungen unter den verschiedenen Schulen und Stufen eine grosse Bereicherung für alle.
Leserbrief Thurgauer Zeitung | 29.08.2017 | Peter Zweidler
Leserbrief Thurgauer Zeitung | 12.09.2017 | Margrit Aerne, SVP-Kantonsrätin
Leserbrief Thurgauer Zeitung | 19.09.2017 | Cornelia Hasler-Roost, FDP-Kantonsrätin
Leserbrief Thurgauer Zeitung | 22.09.2017 | Edith Wohlfender, SP-Kantonsrätin
Leserbrief Thurgauer Zeitung | 05.10.2017 | Stephan Tobler, Fraktionspräsident SVP, Egnach
Leserbrief Thurgauer Zeitung | 10.10.2017 | Renate Bruggmann
Franco Bucca, Bezirkspräsident SP, Kreuzlingen
Ruedi Zbinden, Gemeindepräsident und Kantonsrat Mettlen/ Bussnang, Präsident SVP Thurgau
Leserbrief Thurgauer Zeitung | 12.10.2017 | Joe Brägger, Fraktionschef Grüne Thurgau
Cyrill Huber, Präsident SP Kreuzlingen
Kurt Baumann, SVP Kantonsrat, Sirnach
Regula Streckeisen, Präsidentin EVP Thurgau
Leserbrief Thurgauer Zeitung | 14.10.2017 | Reto Ammann, Kantonsrat GLP, Kreuzlingen
Kristiane Vietze, Kantonsrätin FDP, Frauenfeld
Susanne Brüschweiler
Cornelia Zecchinel
Leserbrief Thurgauer Zeitung | 18.10.2017 | Doris Günter, EVP-Kantonsrätin, Winden
Leserbrief Thurgauer Zeitung | 19.10.2017 | Maike Scherrer, Schulpräsidentin Volksschule Nollen, Hosenruck
Roger Holenstein, Schulpräsident Sekundarschulgemeinde Affeltrangen
Leserbrief Thurgauer Zeitung | 24.10.2017 | Elisabeth Rickenbach, EVP-Kantonsrätin
Artikel Thurgauer Zeitung | 19.09.2017
Bildung Thurgau | 3 / 2017
Artikel Thurgauer Tagblatt | 29.06.2017
Artikel Thurgauer Zeitung | 22.08.2017
Artikel Thurgauer Zeitung | 04.09.2017
Artikel Thurgauer Zeitung | 05.10.2017
Schulblatt Thurgau | 05.10.2017
IHK | Mehr Raum für die Bildung | 4 / 2017
Campus Bildung Kreuzlingen | Diverse Medienberichte Nr.1
Campus Bildung Kreuzlingen | Diverse Medienberichte Nr.2
Campus Bildung Kreuzlingen | Diverse Medienberichte Nr.3
Campus Bildung Kreuzlingen | Diverse Medienberichte Nr.4
Campus Bildung Kreuzlingen | Diverse Medienberichte Nr.5
Datum: 26.10.17
Zeit: 17:00
Ort: PHTG, Gebäude M
Der Erweiterungsbau, über den am 26. November 2017 die Stimmberechtigten des Kantons Thurgau abstimmen werden, steht im Zentrum der Präsentationen am Abend der offenen Türe der PHTG. Die Ausstellung mit Modellen und Visualisierungen im Eingangsbereich des M-Gebäudes an der Schulstrasse ist Treffpunkt. Es besteht dort auch die Möglichkeit mit Mitgliedern der Hochschulleitung und weiteren Mitarbeitenden ins Gespräch zu kommen und über weit mehr als den reinen Bau zu diskutieren. Auf einem Rundgang durchs Gebäude M wird die räumliche Situation an der PHTG aufgezeigt und beim vorgesehenen Bauplatz erklärt, welches Projekt bis im Sommer 2020 realisiert werden soll. Ergänzend werden um 17.15, 18.15 und 19.15 Uhr im Rahmen von Kurzreferaten das Projekt und die Gründe, die dazu geführt haben, erläutert.
An den Standaktionen zum Erweiterungsbau der Pädagogischen Hochschule Thurgau wird das Komitee „Erweiterungsbau-Ja" in allen Regionen des Kantons Thurgau präsent sein und das Gespräch mit der Bevölkerung suchen.
An den Ständen werden auch Mitarbeitende und Studierende der Pädagogischen Hochschule und der Pädagogischen Maturitätsschule Auskünfte zu ihren Schulen geben.
Der Erweiterungsbau soll sowohl von der PHTG als auch der PMS ab 2020 gemeinsam genutzt werden.
Über das für den ganzen Campus Bildung Kreuzlingen wichtige Projekt wird der Thurgauer Souverän am Sonntag, 26. November 2017 befinden.
In diesen Gemeinden im Kanton Thurgau, 10.00 bis 13.00 Uhr
| Ort | Standort |
|---|---|
| Aadorf | Gemeindeplatz 1, Aadorf |
| Amriswil | Mall "Amriville", Kirchstr. 11, Amriswil |
| Arbon | St.Gallerstrasse 18, (vor Witzig-Shop) Arbon |
| Bischofszell | Grubplatz (Ostseite), Bischofszell |
| Diessenhofen | Bahnhofstrasse 24/26 (neben Coop/vis-a-vis TKB), Diessenhofen |
| Eschlikon | Winterthurerstr. 6, Herdernpark / Spar, Eschlikon |
| Frauenfeld | beim Sämannsbrunnen, Frauenfeld |
| Kreuzlingen 30.10.2017 | vor EKZ "Karussell" (bei Litfasssäule), Sonnenstr. 16, Kreuzlingen |
| Matzingen | Thundorferstr. 1 (vor dem Coop), Matzingen |
| Münchwilen | Im Zentrum 4 (bei Gemeindehaus), Münchwilen |
| Romanshorn | Ecke Rislenstr./Alleestr. (vis-a-vis Coop), Romanshorn |
| Sirnach | Kirchplatz 5 (bei Gemeindehaus), Sirnach |
| Steckborn | Gemeindehaus/Stadtverwaltung, Seestrasse 123, Steckborn |
| Wängi | Dorfplatz beim Ochsenkreisel (zw. Post u. Bhf.), Wängi |
| Weinfelden | Weinfelden Marktplatz, Weinfelden |
| Wilen | Wilen Dorfstrasse 37 (vor Spar), Wilen |


Die Pädagogische Hochschule Thurgau (PHTG) bietet wissenschaftlich fundierte, praxisorientierte Aus- und Weiterbildungen für Lehrerinnen und Lehrer aller Volksschulstufen und für die Sekundarstufe II an und bildet Expertinnen und Experten für den Bereich der Frühen Kindheit aus. Durch die Kooperation mit der nahe gelegenen Universität Konstanz profitieren die Studierenden von einem grenzüberschreitenden Studienangebot in der attraktiven Euregio Bodensee. Bestens qualifizierte Dozierende und kompetente Mitarbeitende, modernste Infrastruktur auf dem Campus Bildung Kreuzlingen sowie die zweitgrösste Bibliothek des Kantons Thurgau mit mehr als 143'000 Medien schaffen ein anregendes Umfeld, in dem sich gut lernen lässt.
Erweiterungsbau PHTG
Veröffentlicht am 15. September 2017 unter Campusleben, CTV-Magazin
Hochschulratspräsident Hans Munz im Interview zum Erweiterungsbau
Veröffentlicht am 15. September 2017 unter Bildung, Campusleben, CTV-Magazin












Die Pädagogische Hochschule Thurgau (PHTG) ist eine Erfolgsgeschichte. Die bestehenden Räumlichkeiten wurden für zwei Ausbildungsgänge (für Kindergarten und Primarschule) mit 350 Studierenden geplant. Heute bildet die PHTG in fünf Studiengänge fast 800 Studierende für alle Stufen (auch für Sekundarschule, Gymnasium und Frühe Kindheit) aus. Deshalb braucht es den Erweiterungsbau.
Der Erweiterungsbau ...
Interview mit Ständerätin Brigitte Häberli-Koller zur Abstimmung vom 26. November
Ständerätin Brigitte Häberli-Koller ist Mitglied des Hochschulrates der Pädagogischen Hochschule Thurgau (PHTG), ist Präsidentin der ständerätlichen Kommission für Wissenschaft, Bildung und Kultur und war in den ersten fünf Jahren Präsidentin des Fördervereins der PHTG. Wir haben ihr einige, auch kritische Fragen zur bevorstehenden Abstimmung über den Erweiterungsbau der PHTG gestellt.
Sie sind seit fünf Jahren Mitglied des Hochschulrates der PHTG, der sich ja schwergewichtig auch mit strategischen Fragen befasst. Wohin steuert die PHTG?
Zunächst möchte ich festhalten, dass sich die PHTG in den 14 Jahren ihres Bestehens ausgezeichnet entwickelt hat. Das ist insofern nicht ganz selbstverständlich, als der Kanton Thurgau mit der Gründung der PHTG Neuland betreten hat: Sie ist nämlich die erste und einzige Hochschule in unserem Kanton. Richtigerweise hat man mit den beiden Studiengängen für die Stufen Kindergarten und Primarschule begonnen, für die wir im Thurgau an den früheren Seminaren schon vorher ausgebildet haben. Dann folgte Schritt für Schritt der Auf- und Ausbau mit drei weiteren Studiengängen, so dass die PHTG im Thurgau und für den Thurgau jetzt für alle Stufen ausbilden kann. Seit 2013 ist der Vollausbau mit fünf Studiengängen erreicht. Und seither ist auch die Zahl der Studierenden immer zwischen 700 und 800.
Und wie geht es weiter?
Die aktuelle Strategie für die PHTG ist klar auf Konsolidierung und Qualitätssicherung ausgerichtet. Es wird also in Zukunft weder mehr Studiengänge noch wesentlich mehr Studierende geben. Oder mit anderen Worten: Mit dem Erweiterungsbau, über den wir jetzt abstimmen, hat die PHTG auf lange Sicht eine ausreichende und optimale Infrastruktur. Es ist eine notwendige Investition in die Zukunft, von der wieder Generationen profitieren werden.
In Ihrer Funktion als Präsidentin der ständerätlichen Kommission für Wissenschaft, Bildung und Kultur (WBK-SR) haben Sie auch die gesamte schweizerische Hochschullandschaft im Blick. Wo steht die PHTG im Vergleich?
Die PHTG hat sich auch in der schweizerischen Hochschullandschaft bestens positioniert und etabliert. Sie ist als siebtgrösste unter den insgesamt 16 Pädagogischen Hochschulen (PH) in der Schweiz die grösste der kleineren. Und sie verfügt in der Ostschweiz über das umfassendste Ausbildungsangebot. Auch im Bereich der Berufseinführung, der Weiterbildung und der Forschung, die alle zwingend zum Auftrag einer PH gehören, geniesst sie schweizweit einen hervorragenden Ruf. Ein Alleinstellungsmerkmal bildet die grenzüberschreitende Zusammenarbeit mit der Universität Konstanz. Dank dieser engen Kooperation ist es überhaupt möglich, dass die PHTG auch Lehrerinnen und Lehrer für Sekundarschulen und Gymnasien ausbilden kann. Und diese Zusammenarbeit trägt überdies zur Attraktivität der PHTG für Studierende und Dozierende bei, was ebenfalls wichtig ist.
Steht die PHTG denn in einem Wettbewerb?
Ja, das ist so. Die Studierenden – auch jene aus dem Thurgau – können nämlich frei wählen, an welcher PH sie studieren wollen, und da die Abschlüsse gesamtschweizerisch anerkannt sind, können sie nach der Ausbildung in der ganzen Schweiz unterrichten. Darum sind gute Arbeits- und Studienbedingungen wichtig. Auch darum braucht es den Erweiterungsbau.
Auf einen weiteren wichtigen Punkt möchte ich in diesem Zusammenhang hinweisen. Wie alle anderen Hochschulen in der Schweiz, also auch die Universitäten und Fachhochschulen, müssen sich die Pädagogischen Hochschulen auf Grund der neuen Hochschulgesetzgebung in den kommenden Jahren einem Akkreditierungsverfahren stellen, das unter anderem darüber entscheidet, ob sie weiterhin als Hochschule anerkannt sind. Dafür braucht die PHTG gute Voraussetzungen – auch bezüglich Infrastruktur.
Sie haben sich von Anfang an bereits als Gründungspräsidentin des Fördervereins für die PHTG eingesetzt. Die Lehrerinnen- und Lehrerbildung scheint Ihnen ein wichtiges Anliegen zu sein.
Unbedingt. Eine gute Lehrerinnen- und Lehrerbildung ist ein, wenn nicht der Schlüsselfaktor für eine gute Schule und eine gute Bildung – und damit auch für unsere Gesellschaft und für unsere Wirtschaft. Das haben bereits unsere Vorfahren erkannt, als der damals noch junge Kanton Thurgau 1833 als einer der ersten in Kreuzlingen ein Lehrerseminar gründete. Der Thurgau kann in diesem Bereich also mit Stolz auf eine 184-jährige Tradition zurückblicken. Und das Wichtigste: Dank der eigenen Lehrerinnen- und Lehrerbildung ist es uns im Thurgau immer recht gut gelungen, genügend gut qualifizierte Lehrpersonen auszubilden. Das ist auch in Zukunft unser oberstes Ziel.
Ausbilden ist gut, aber wie sieht es denn mit der Berufstreue aus?
Wir können erfreut feststellen, dass die PHTG Lehrerinnen und Lehrer ausbildet, die ihren Beruf mit Freude und Zufriedenheit ausüben und ihm treu bleiben. So sind gemäss den Zahlen des Bundesamtes für Statistik (BfS) fast 90 Prozent der Absolventinnen und Absolventen der PHTG auch fünf Jahre nach dem Abschluss noch im Lehrberuf tätig, und zwar mit einem Pensum von über 85 Prozent. Und auch nach zehn Jahren – die ersten Studierenden der PHTG schlossen 2006 ab – sind gemäss eigenen Untersuchungen über 80 Prozent ihrem Beruf immer noch treu geblieben. Das sind nicht Behauptungen, sondern Fakten, die zeigen, dass wir auf dem richtigen Weg sind. Den wollen wir auch in die Zukunft weiter gehen.
So weit, so gut. Aber sind die 26,88 Mio. Franken für den Erweiterungsbau nicht etwas viel?
Sicher erscheint das Kreditbegehren für den Erweiterungsbau, über den wir am 26. November abstimmen werden, auf den ersten Blick recht hoch. Bei genauerem Hinsehen stellen wir aber fest, dass die Kosten gerechtfertigt sind. Im Gegensatz zu früheren Bauten war ein Landabtausch mit der Schulgemeinde Kreuzlingen nötig, um an diesem betrieblich und städtebaulich idealen Standort überhaupt bauen und damit praktisch die letzte Baulücke auf dem Campus nutzen zu können. Fachleute nennen das verdichtetes Bauen. Weitere Mehraufwendungen entstehen – wie oft in Seenähe – durch den schwierigen Baugrund, durch aufwendigere Vorbereitungsarbeiten in einer bereits überbauten Umgebung und wegen der Rücksicht auf teils denkmalgeschützte benachbarte Gebäude wie Kloster und Basilika. Aber wie erwähnt: Es gibt zu diesem Standort keine sinnvolle Alternative.
Das sind die standortbedingten Mehrkosten. Wie steht es mit den reinen Gebäudekosten?
Die reinen Gebäudekosten belaufen sich auf 20,22 Mio. Franken, was einen Preis von 857 Franken pro Kubikmeter ergibt. Das ist sogar weniger, als beispielsweise der 2017 eingeweihte Schulhausneubau in St. Margarethen TG pro Kubik gekostet hat. Und das, obwohl im Erweiterungsbau der PHTG auch Spezialräume wie eine Ausbildungsküche mit den notwendigen Nebenräumen eingeplant werden musste, um künftig auch für den Bereich Hauswirtschaft und damit nicht nur alle Stufen, sondern auch für alle Fächer ausbilden zu können.
Der Erweiterungsbau ist nicht ein «teurer Bildungstempel», wie von einzelnen Gegnern plakativ behauptet wird, sondern ein zweckmässiges Gebäude am idealen Standort, in der massgeschneiderten Grösse und zu einem vernünftigen Preis, der sich im Rahmen vergleichbarer Bauten hält. Zudem werden die Mittel in das eigene Eigentum investiert, und sie kommen über Aufträge zum grössten Teil der Thurgauer Wirtschaft zugute.
Mit einem Ja zu diesem Kredit schaffen wir die Voraussetzungen, dass wir die Erfolgsgeschichte der Thurgauer Lehrerinnen- und Lehrerbildung und der PHTG fortschreiben können.
Wir danken Ihnen für das Gespräch.
Ständerätin Brigitte Häberli-Koller bei der Standaktion für den Erweiterungsbau der PHTG im Gespräch mit Bürgerinnen und Bürgern.





